Leuke starterswoning met 2 slaapkamers te Dessel
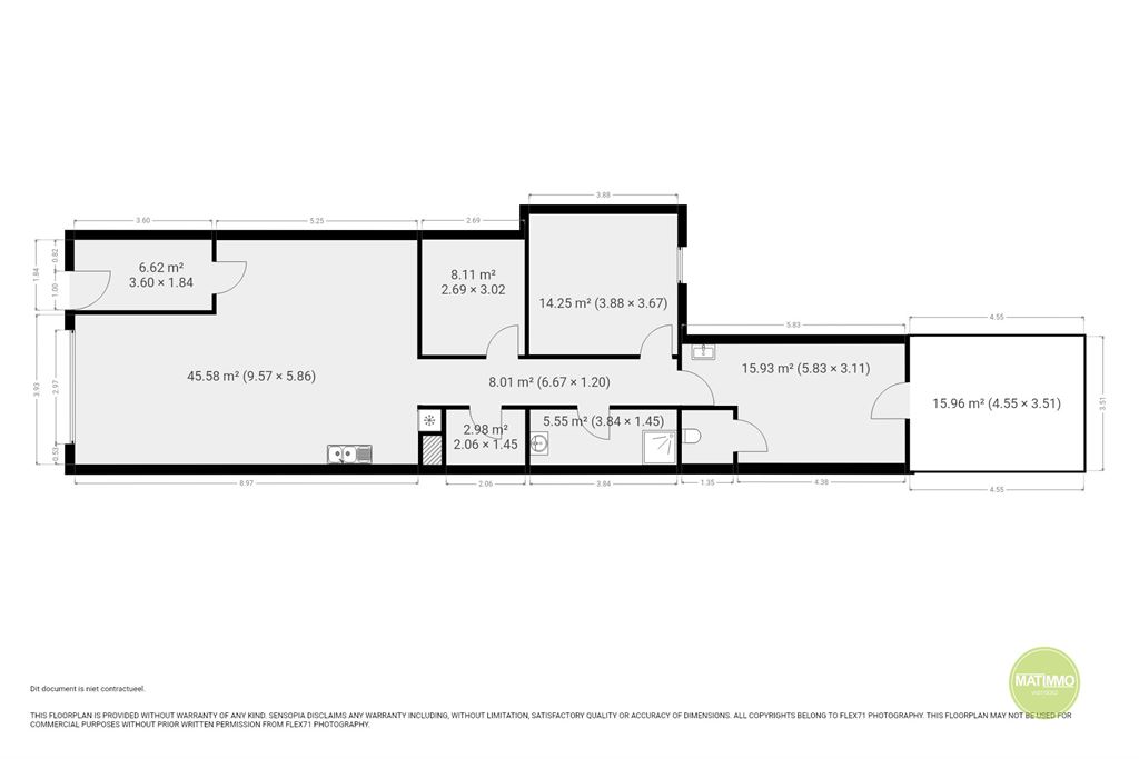
Dit goed onderhouden huis in het centrum van Dessel biedt het perfecte evenwicht tussen comfort en praktische indeling. Met een bewoonbare oppervlakte van 126 m² en een grondoppervlakte van 161 m² beschikt deze woning over alles wat u nodig heeft.
De woning telt 2 ruime slaapkamers en 1 moderne badkamer. Via de inkomhal krijgt u directe toegang tot de gezellige leefruimte, waar volop licht naar binnen komt, wat een aangenaam en ruim gevoel creëert. De keuken is bovendien volledig geïnstalleerd met de nodige apparatuur. Verder zijn er twee ruime slaapkamers, waarvan één uitgerust met ingebouwde kasten. De badkamer beschikt over een moderne douche, mooi afgewerkt, alsook een stijlvol wastafelmeubel. Praktische voordelen zijn overvloedig aanwezig: ruime berging voor opslagplaats, technische ruimte, en een aangename koer, volledig omheind en voorzien van de nodige privacy.
Belangrijke troeven:
- Warmtepompen lucht-lucht (2026)
- elektriciteit vernieuwd en conform
- Energiezuinig met label B
- Zonnepanelen goed voor 4095 Wp
- Recent volledig opgeschilderd en voorzien van armaturen en raamdecoratie
Deze woning is ideaal voor starters of kleine gezinnen die op zoek zijn naar een comfortabele plek op een centrale ligging. Volledig gerenoveerd en klaar om in te trekken!
Wenst u ook uw eigendom te verkopen? Contacteer ons vrijblijvend voor een GRATIS schatting op 0498/44.59.21





















